
Ve stráni nad krkonošskou vesnicí Strážné kdysi stávala roubená chalupa. Tu však pohltila doba hromadné rekreace, stejně jako respekt k vlastnictví, řemeslu, lidem, věcem a přírodě. Původní stavení tak zmizelo pod nánosem přestaveb, přístaveb a přílepků, nekvalitních vysprávek a umakartových obkladů, takže z něj k zachránění nezbylo téměř nic. Cílem architektů ze studia Mimosa se tak spíše než zachování materie stalo znovuobjevení duše stavby.
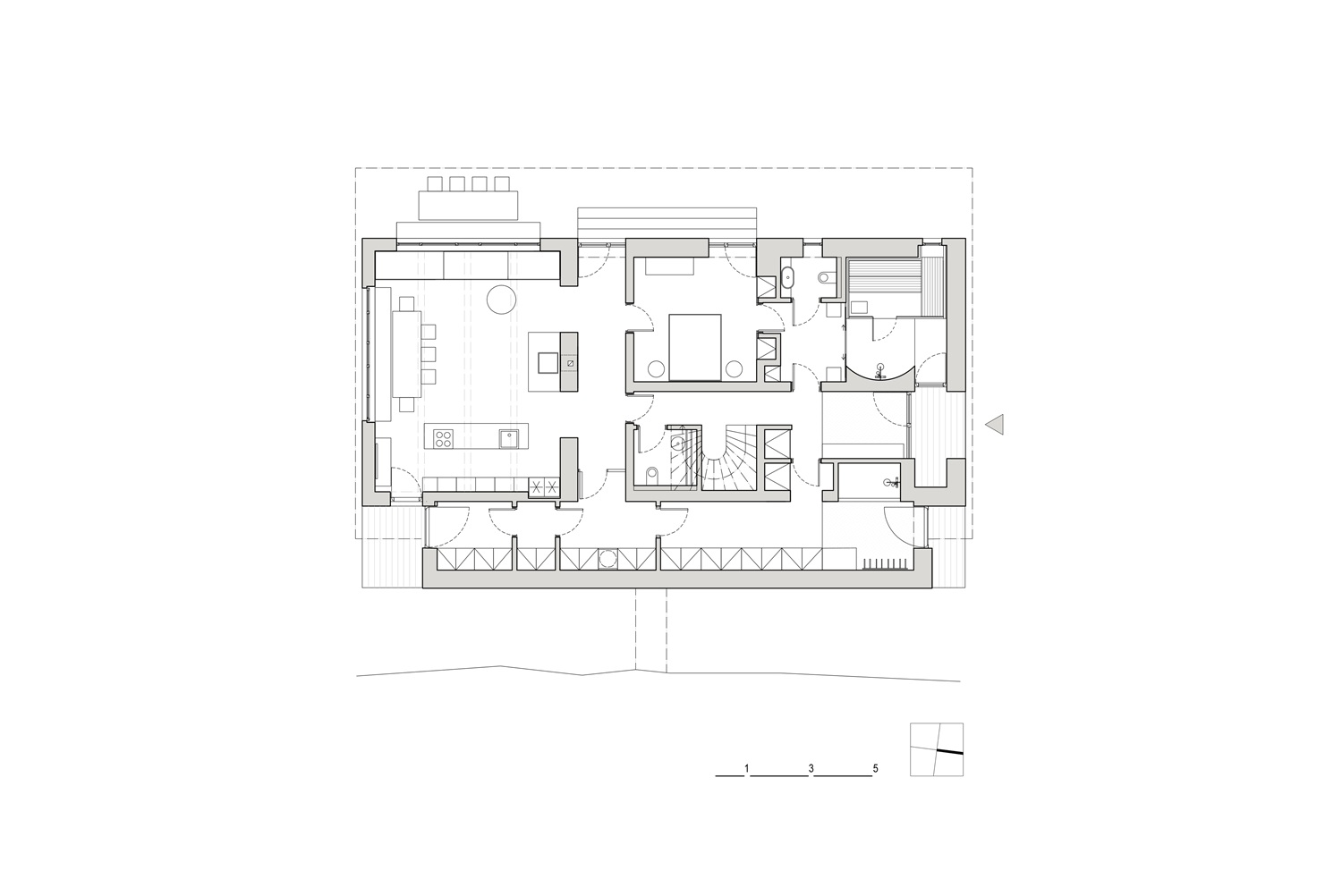
Krkonošské stavby charakterizují mohutné, strmé střechy, které kdysi svým obyvatelům umožňovaly přežít dlouhé zimy. Typické pro ně byly i seníkové vikýře, asymetrická nasazení střech na nízkém roubení vytvářejícím zápraží, deštění ve štítech, kamenné podezdívky a dispoziční trojdělení. A právě takovou chtěli architekti vrátit na místo, kam patří. Cílem jejich návrhu bylo vytvořit autentickou atmosféru chalupy, aniž by se uchýlili k začlenění historizujících prvků bez jakékoli skutečné historické hodnoty. Nesnažili se vměstnat do tradičního objemu soudobé prostorové principy, ale spíše naopak – vytvořit soudobou stavbu při využití tradičních prostorových principů. Ve světnici tak zůstala zachována atmosféra uzavřeného, bezpečného, intimního prostoru. Její dimenzi – a následně i měřítko dalších místností – určil jeden z mála dochovaných prvků: trámový strop. Ten předurčil světlou výšku i celkovou proporci prostoru. Díky kombinaci otevíravých a bezrámových zasklení zůstal zachován rytmus tradiční stavby v exteriéru i interiéru a zároveň se interiér otevřel výhledům do krajiny.
Právě světnice, s pohodlným sezením pod okny a velkým stolem, je srdcem celého přízemí. Do objemu původní chalupy je dále vložen pokoj pro hosty a schodiště. Toalety přistavěné za socialismu se proměnily v saunu se zázemím. Mezi svah a původní objem chalupy je vloženo skladové a technické zázemí pro vše, co se na horách může hodit – spíž, prádelna, vybavení pro lyžování a cyklistiku, dílna, technická místnost a umývárna pro psa a kolo v jednom. Podkrovní prostory jsou v duchu původních podstřešních prostor velkoryse otevřeny a poskytují soukromí jednotlivým členům rodiny. Pokoje ve štítech nabízejí výhledy na hřebeny Krkonoš.
Technické vybavení objektu je navrženo s ohledem na umístění chalupy. Záměrem nebyla demonstrativní technologická soběstačnost, ale co možná nejjednodušší, funkční a nerušící provoz. I přes osamocenou pozici v krajině je objekt napojen na elektrickou rozvodnou síť. O vytápění a přípravu teplé vody se stará tepelné čerpadlo země/voda s geotermálním vrtem. Vodou je objekt zásobován z nedaleké studánky, splaškové vody jsou likvidovány ve vlastní čističce odpadních vod.
Chalupa ve stráni
Místo: Strážné, Královéhradecký kraj, ČR
Ateliér: Mimosa architekti
Autor: Jana Zoubková, Petr Moráček, Pavel Matyska, Eliška Vinklárková
Spolupracovníci a dodavatelé: Bulb (osvětlení); Oakcent (podlaha, materiál dřevěných obkladů stěn); Archtiles (dlažby a obklady); Brick (truhlářské výrobky); AM Interior (interierové obklady stěn a dveře); Kurel (zámečnické výrobky)
Projekt: 2022
Realizace: 2025
Zastavěná plocha: 234 m²
Užitná plocha: 306 m²
Foto: Petr Polák