
Původní dům z padesátých let 20. století byl na přelomu milénia zrekonstruován podle návrhu studia ADR pro potřeby pětičlenné rodiny. Současná rekonstrukce ho proměnila v komfortní bydlení manželského páru s prostory pro setkávání s rodinou a přáteli. Vedle dispozic a kompletní proměny interiéru byly upraveny i povrchy, barvy a materiály exteriéru.
Navenek nedává dům zásadní rekonstrukci vnitřních prostor příliš znát. Barevně tlumená fasáda, kombinující jemnozrnnou a hrubou omítku se vstřikovaným kamenným zrnem, zklidnila jeho celkový výraz. Soudobé řešení oken nahradilo historizující členění a výrazně prosvětlilo interiér. Okna různých konstrukčních a materiálových řešení – dubová, s překrytím vnějším sklem, bezrámová nebo s bělenými smrkovými rámy – přímo reagují na charakter jednotlivých místností. Rozsah původních a současných oken dává tušit jejich materiál. Nejvýrazněji se do exteriéru propsaly dispoziční úpravy patra, kde velkorysý vikýř s bezrámovým zasklením směrem do zahrady nahradil původní dva malé.
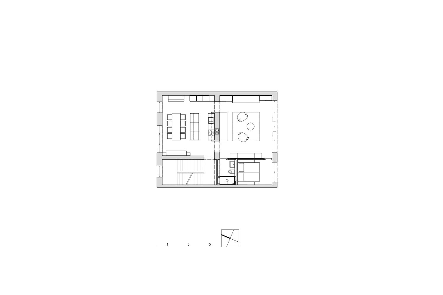
Vnitřní členění domu bylo upraveno výrazně. Vstup na nejnižší úrovni domu byl celkově zvětšen a prosvětlen díky proskleným dveřím, odstraněním podhledů a proměně materiálů i barev. V přízemí jsou v kontaktu se zahradou hlavní prostory: obývací pokoj, kuchyň s jídelnou a ložnice s koupelnou. Pro tu se podařilo vyšetřit místo zmenšením průchodu na zahradu a drobnými souvisejícími změnami. V patře se prostory, které dříve sloužily jako dětské pokoje, proměnily v „salon“ pro setkávání rodiny při slavnostních příležitostech a současně v domácí kinosál a pokoj pro hosty. Zásadní proměnou prošlo také podkroví, jež nyní umožňuje i delší pobyt hostů, aniž by bylo narušeno jak jejich soukromí, tak soukromí hostitelů.
V interiéru jsou ponechány a doplněny některé původní prvky, například pozinkované zábradlí, které propojením na hlavních a vedlejších podestách jednotlivých ramen získalo „neprašovský“ charakter. Renovovány a doplněny byly původní parkety a podlahové „lišty“ z pozinkovaného plechu. Stěny v bílé a šedé dávají vyniknout obrazům, část je obložena překližkou v přírodním tónu. Také koupelny byly změněny jak prostorově, tak celkovým laděním. Bílé velkoformátové obklady (3 × 1 m) doplňuje teracová dlažba a truhlářské kusy z dubového masivu. Původní vnitřní dveře s nadsvětlíky prošly renovací, nové jsou provedeny se skrytými zárubněmi.
Interiér je především sbírkou věcí shromažďovaných s citem a rozmyslem po celý život. Kamna v obývacím pokoji vytvořil přítel Jürgen Rajh, truhlářské vybavení z masivu vyrobil syn Jakub. Skleněná socha spočívající na kamnech je dílem kamarádky Dany Vachtové. Textilní prvky interiéru ušila investorka z vlny přivezené ze Skotska, světla nad jídelním stolem pořídil investor na dánském bazaru. Betonové dlaždice terasy jsou z betonárny nedaleko Javornické palírny, dalšího investorova „příběhu“.
Znovu doma
Místo: Praha-Břevnov, ČR
Ateliér: Mimosa architekti
Autor: Jana Zoubková, Petr Moráček, Pavel Matyska
Spolupráce: Duba hardwood manufacture (truhlářské výrobky); Trikamon (dodavatel kamene); Bulb (dodavatel osvětlení); Archtiles (dodavatel keramických obkladů);
Projekt: 2021
Realizace: 2025
Plocha pozemku: 390 m²
Zastavěná plocha: 190 m²
Užitná plocha: 314 m²
Foto: Petr Polák Studio