
Vinařství pod Bílými Karpaty navrhli architekti ze studia Mimosa na místě bývalého statku jako jednoduchou stavbu jasných a čitelných tvarů – jak v lokálním, tak světovém kontextu. Objekt charakterizuje pravidelný rytmus a řád, vycházející z dlouhých linií vinic, z kontur Bílých Karpat i tvaru kleneb vinných sklepů.
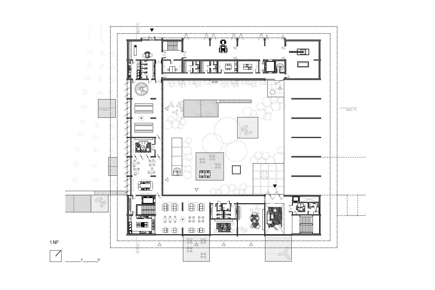
Nízná, horizontální stavba je při pohledu zdálky nenápadná, nevyčnívá z krajiny. Díky navrženému materiálu –pohledovému pemrlovanému betonu probarvenému ve vrstvách – je pevně spjata se zemí. Uzavřená hmota vytváří vnitřní pobytovou zahradu – soukromý venkovní prostor chráněný před pohledy z blízké rozhledny i z okolních cest, který v letních měsících, kdy jsou vnější fasády i okolní zelené plochy zality sluncem, nabízí stinné útočiště.
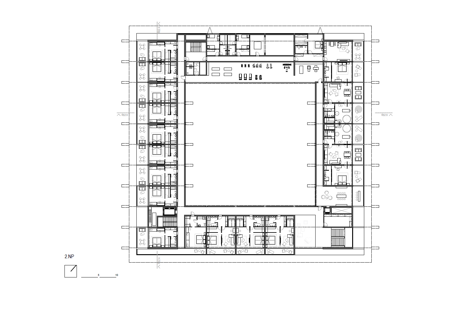
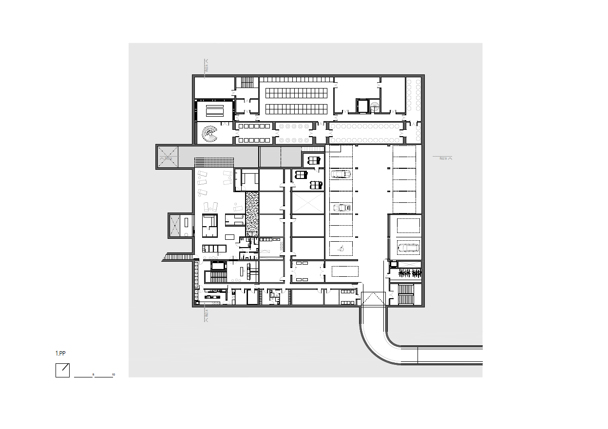
Objekt má dvě nadzemní a jedno podzemní podlaží. Dispoziční řešení vychází z propojení produkční části vinařství s částí ubytovací. Ta čítá 15 pokojů a zázemí v podobě prostor pro degustaci vína, gastronomii, wellness, fitness a další.
Stavba je kompletně navržena jako monolitická. Pravidelný rastr konstrukcí implikuje jednoduché statické řešení vyvažující estetické nároky na pohledovost betonu a řešení tepelných parametrů obálky budovy. Střecha objektu je pokryta vegetačním souvrstvím, díky čemuž dům splývá s okolní krajinou a neruší výhledy na Bílé Karpaty.
Materiálová skladba je omezena na minimum materiálů se silným charakterem – probarvený beton v různých povrchových úpravách, cortenový plech, sklo. V interiéru pak tvrdost konstrukcí vyvažuje textil v přírodních tónech.
Vinařství pod Bílými Karpaty
Místo: Bílé Karpaty, ČR
Ateliér: Mimosa architekti
Autor: Petr Moráček, Jana Zoubková, Pavel Matyska
Spolupráce: Dalibor Pospíšil, Wanda Molnárová, Kateřina Slezáková
Klient: soukromá osoba
Projekt: 2025
Plocha pozemku: 11 570 m²
Zastavěná plocha: 33 00 m²
Vizualizace: ex-machina