
Areál bývalé přádelny v Kežmarku, který je národní kulturní památkou, se donedávna nacházel v havarijním stavu. Studio BEEF ARCHITEKTI přistoupilo k návrhu jeho rekonstrukce s respektem k industriálnímu charakteru objektu, který tak získal novou funkci, aniž by ztratil svou identitu. Navíc vznikl i nový veřejný prostor, jenž v této části města dosud chyběl. Projekt tak nepředstavuje jen záchranu památky, ale také její přeměnu na živé místo, kde se průmyslová minulost setkává s městskou funkcí.
Bývalá přádelna v Kežmarku, kterou v roce 1860 založil Karl Wein, patřila svého času k nejmodernějším továrnám v Uhersku. V období, kdy se pod Tatrami rozvíjel tkalcovský průmysl, šlo o významný průmyslový podnik. Výroba probíhala nepřetržitě až do roku 1946. Následně závod fungoval jako Tatraľan – mechanická přádelna a tkalcovna lnu – a zaměstnával na dva a půl tisíce pracovníků. Po roce 1989 se však v důsledku ekonomické transformace výroba zastavila. Navzdory složitým obdobím se areál zachoval a jeho architektonická hodnota byla potvrzena prohlášením hlavního výrobního objektu za národní kulturní památku.
Architektonický koncept a soutěž – vztah k městu a veřejnému prostoru
V roce 2019 vyhlásil nový majitel objektu architektonickou soutěž, jejímž cílem bylo vytvořit moderní výrobní a administrativní zázemí pro známého výrobce alkoholu, integrované do historické budovy. Součástí rekonsturkce byla i rozsáhlá sanační a statická opatření, neboť pod budovou protéká potok a vlhkost poškodila zdivo, podlahy i stropy.
Autoři návrhu ze studia BEEF ARCHITEKTI kladli důraz na propojení průmyslové historie areálu s novou vrstvou architektury. Objekt se prakticky nachází v extravilánu – v průmyslové zóně města, kterou architekti vnímají jako místo s potenciálem stát se novým urbánním uzlem lokality. Proto navrhli veřejný prostor, jenž přirozeně propojuje jednotlivé části areálu a zpřístupňuje historickou budovu obyvatelům i návštěvníkům města.
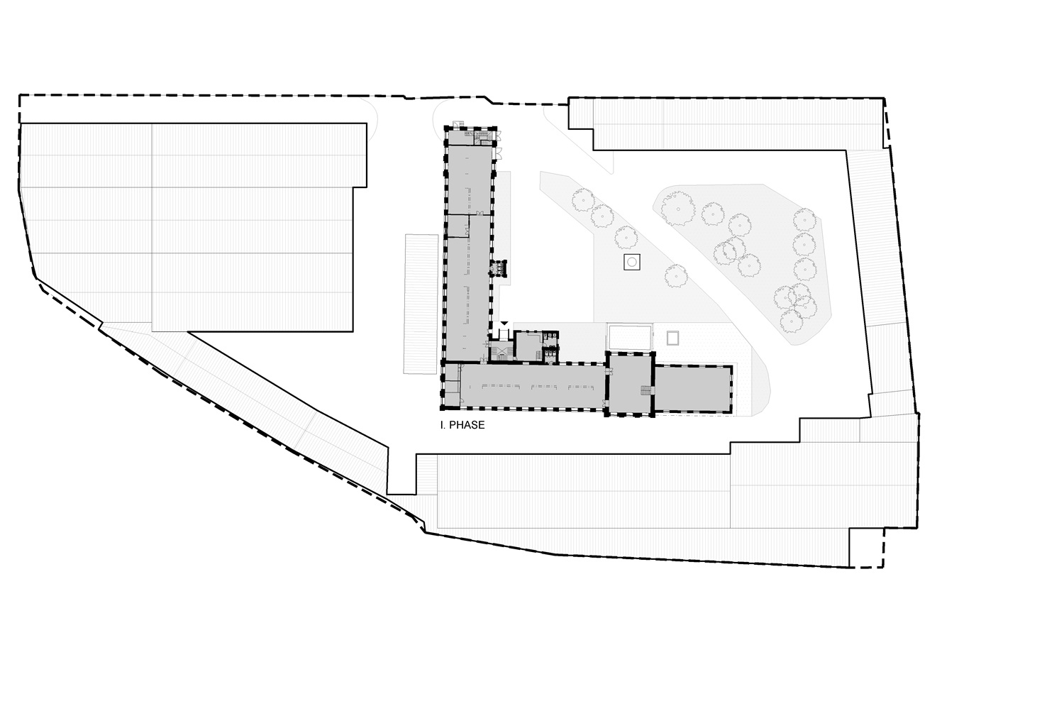
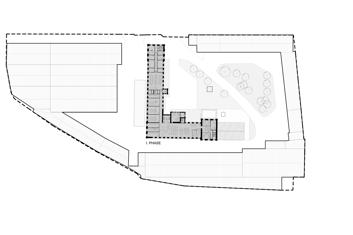
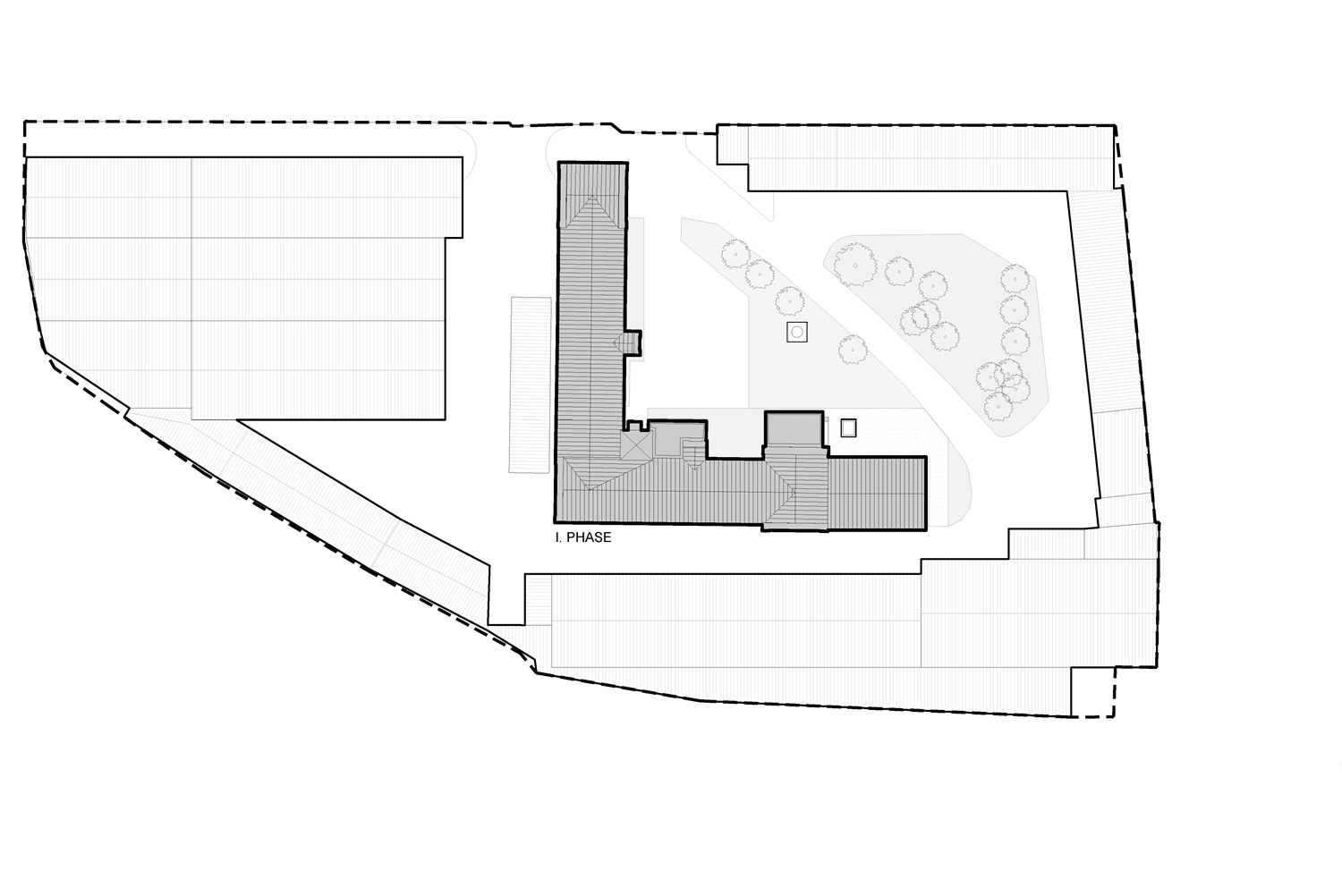
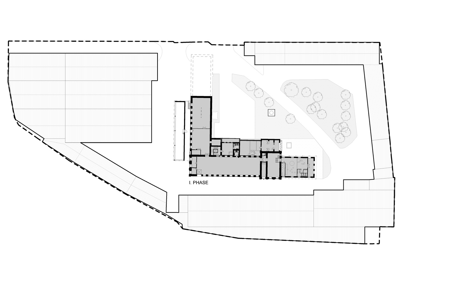
Navrh nabízí kombinaci výrobních, kulturních, rekreačních a společenských funkcí. V přízemí nově navržené dostavby vznikne kavárna, podniková prodejna a muzeum věnované historii zpracování lnu, čímž se průmyslové dědictví přiblíží veřejnosti. První, mezitím již dokončená fáze přestavby areálu, se zabývala hlavně rekonstrukcí původní budovy s adaptací jejích prostor pro provoz výroby, administrativní části, degustačních prostor a apartmánů pro hosty.
Celý proces probíhal v úzké spolupráci s památkovým úřadem. Autoři kladli důraz na zachování autentických detailů – od litinových výztuží s motivem lněného květu až po cihlový komín, který se v budoucnu stane pozorovatelnou s panoramatickým výhledem na Tatry.
Propojení historie s novou funkcí
Zachování historické vrstvy bylo pro návrh klíčové. Autoři odstranili pozdější přístavby, hlavně kotelnu, které narušovaly proporce a siluetu původního objektu, a vrátili mu jeho původní hmotu. Jednu z přístaveb ponechali z funkčních důvodů – poskytuje zázemí pro zaměstnance – a vizuálně ji oddělili od zbytku objektu. U materiálového řešení se rozhodli pro střídmou paletu: k původní obnažené konstrukci s litinovými sloupy doplnili jen terakotové dlažby a světlé omítky. Nové vrstvy jsou záměrně neutrální, aby nechaly vyniknout původní konstrukci a patinu.
Interiér architekti navrhli s důrazem na čitelnost původní statické logiky. Litinové sloupy, cihlové klenby a poloklenby zůstaly zachovány. Původní materiálová vrstva byla očištěna, stěny jen přemalovány, aby si zachovaly přirozenou texturu. Nové prvky – podlahy, zábradlí a svítidla – jsou řešeny jednoduše a účelně, aby nepůsobily rušivě.
Z technického hlediska bylo největší výzvou zajistit protipožární opatření vzhledem k přítomnosti lihu a skladových prostor. Všechny zásahy řešili autoři tak, aby minimalizovaly vizuální zásah do architektury.
Přádelna Kežmarok
Místo: Kežmarok, Slovensko
Ateliér: BEEF ARCHITEKTI
Autor: Rado Buzinkay, Andrej Ferenčík
Spoluautor: Lukáš Valenčin
Klient: Karloff
Projekt: 2022 (1. fáze), 2025–2026 (2. fáze)
Realizace: 2024 (1. fáze)
Plocha pozemku: 12 199 m²
Užitná plocha: 4 622 m²
Foto: Jakub Čaprnka