
Cabin Devín je energeticky soběstačné víkendové bydlení, které v roce 2024 vyrostlo v okrajové části Bratislavy. Dvě otevíravé fasády a transformační prvky umožňují rozšířit interiér směrem do krajiny a měnit ho z kompaktního útočiště v otevřený pavilon s panoramatickým výhledem na děvínské vinice.
Zadáním bylo navrhnout na ploše 20 metrů čtverečních plnohodnotné víkendové obydlí bez kompromisů na úkor komfortu a současně zajistit jeho naprostou energetickou soběstačnost. Objekt stojí na konci pozemku vinařství Zlatý Roh, přibližně tři kilometry nad restaurací ECK. Poloha vysoko nad hradem Děvín nabízí jedinečný výhled přes vinice na západ slunce nad rakouským pohořím. Samo místo má silnou atmosféru, a proto bylo záměrem architektů navrhnout objekt tak, aby poskytoval bezpečí v každém ročním období a zároveň zůstal v neustálém kontaktu s krajinou.
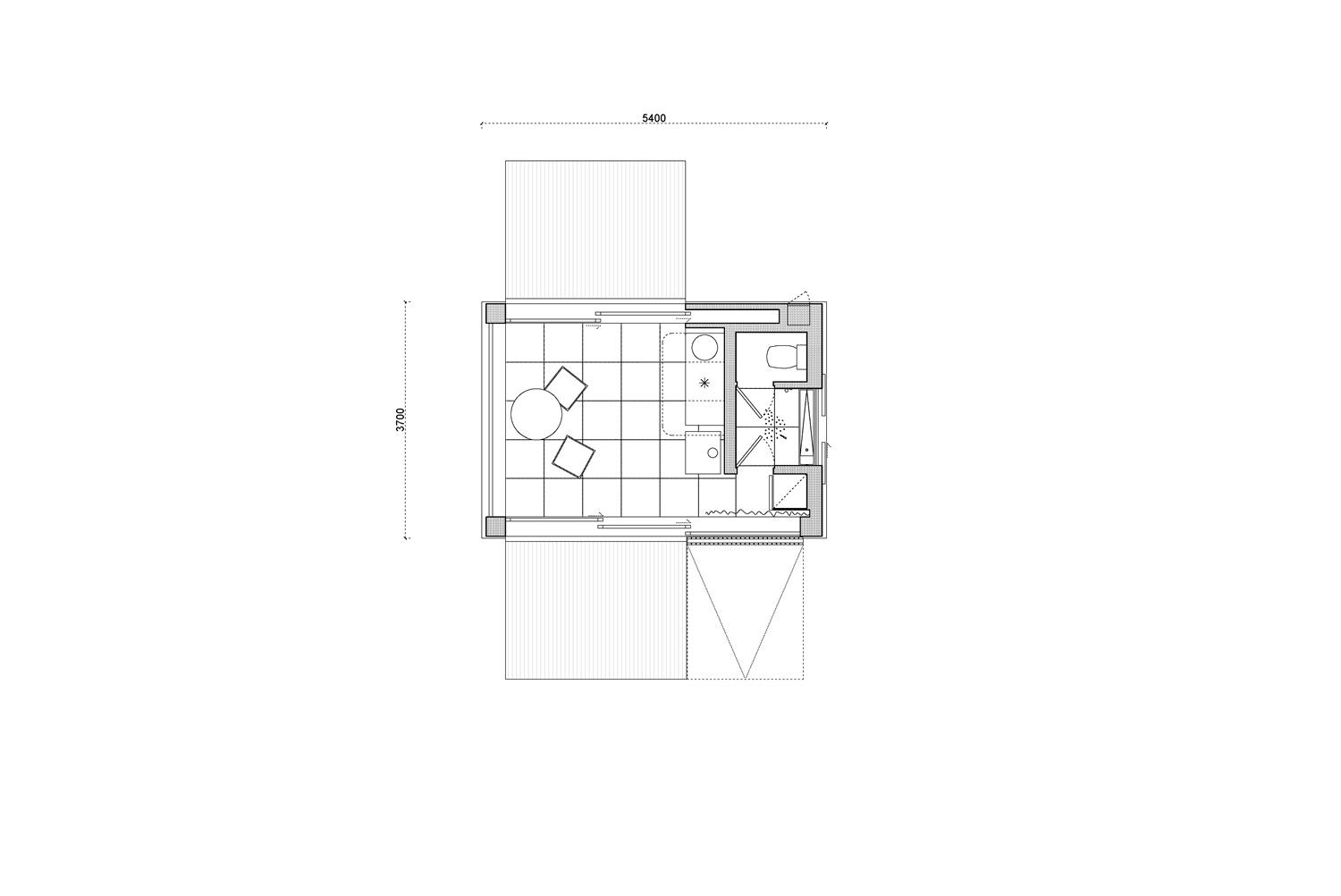
Objekt reaguje na výhled maximálním otevřením. Dvě strany domku jsou otevíravé pomocí sklopných teras, které po vyklopení odhalí posuvné skleněné stěny. Přední stínění skrývá celoplošné zasklení čelní stěny. Většina času se odehrává právě v prostoru mezi těmito otvory. Po jejich otevření se interiér rozšíří o terasy na obou stranách a užitná plocha se opticky i funkčně znásobí. Interiér tak není oddělen od exteriéru, ale plynule s ním spolupracuje.
Za zády hlavního pobytového prostoru je situována kompaktní kuchyňská linka a za ní koupelna se sprchou. Betonové umyvadlo osazené přímo v okně směřuje pohled do lesa. Tento moment zpomaluje ranní rituál a propojuje každodennost s přírodou.
Večer nastává transformace. V interiéru visí lampa, jejíž kabel sahá až z podkroví. Po vytáhnutí se lampa začne zvedat a odhalí prostor na spaní, který během dne zůstává skrytý. Schodiště je zasunuto ve skříni a působí jako regál, objeví se až v momentě potřeby. Podkroví má kontrastní atmosféru – místo prosklených stěn ho chrání hutný plášť střechy, jenž uživatele uzavírá do intimního prostoru. Nad hlavou zůstává jen stropní světlík určený k pozorování hvězd.
Cabin je od okolního světa oddělen nejen pocitově, ale také technologicky. Funguje jako off-grid objekt během všech ročních období bez omezení komfortu. Energetická koncepce kombinuje solární panely s bateriovým úložištěm a plynovými bombami. Hybridní spotřebiče automaticky přepínají z elektrické energie na plyn v momentě, kdy kapacita baterie klesne pod nastavenou úroveň. Elektřina zůstává prioritně pro osvětlení a drobná zařízení, zatímco energeticky náročnější procesy, jako ohřev vody, topení či chlazení, se flexibilně přizpůsobují dostupnému zdroji.
Užitná voda je akumulována v rezervoáru ukrytém ve zvýšené podlaze. Tam je rovněž integrována samostatná nádrž na splaškovou vodu. Ochranu před přehříváním zajišťuje inteligentní stínění a řízené provětrávání. V létě systém nasává chladnější vzduch zpod podlahy na severní straně a teplý vzduch odsává přes rekuperační jednotku pod střešním světlíkem. V zimě je provoz obousměrný a řízený podle měření CO2 a vlhkosti.
Cabin Devín
Místo: Bratislava-Děvín, Slovensko
Ateliér: Ark-Shelter; Archekta
Autor: Martin Mikovčák, Viktor Mikovčák
Spoluautor: Barbora Šimášková, Ondrej Vavro, Radovan Hnidka
Spolupracovníci a dodavatelé: Radovan Hnidka (konstruktér); Mário Cyprich (tesař); Ark-Shelter (realizace modulu a vestavěného nábytku); Stanislav Mikovčák (umělecká díla); VAK (skla); PV SERVICE PLUS (Loxone a solární panely)
Klient: Cabin Devín
Projekt: 2023
Realizace: 2024
Zastavěná plocha: 20 m²
Užitná plocha: 14,7 m²
Rozměry: 5,4 × 3,7 × 5,1 m
Náklady: 4,5 mil. Kč / asi 184 tis. eur
Foto: BoysPlayNice