
Chata na břehu Sázavy nahrazuje svou předchůdkyni, z níž po požáru zbyla jen kamenná podezdívka. Tu se architekti ze studia Mimosa rozhodli zachovat a využít ji jednak jako přirozenou ochranu před povodní a jednak tím stavbu vyvýšit a uživatelům tak otevřít výhled na řeku. Stačí jen shrnout okenici…
Chata je navržena jako lehká dřevěná stavba posazená na robustní kamenné podezdívce. Dřevěný skelet je z interiéru opláštěn smrkovou biodeskou, zvenčí fasádou z opálených modřínových prken. Opálením získala prkna trvanlivost, zároveň se stala připomínkou osudu předchozí stavby a chata se díky nim rovněž stala méně atraktivní pro nezvané hosty. Směrem ke svahu je objekt opláštěn falcovaným plechem odolným vůči vodě stékající ze střechy.
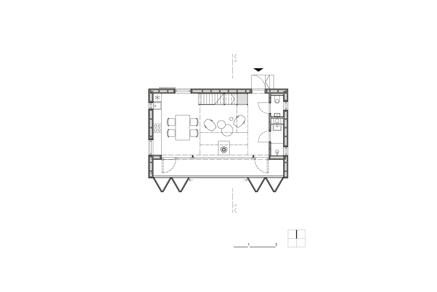
Interiér je díky jednotnému materiálu a barevnosti – biodesce s přírodním vzhledem a černému kovu – celistvou „jeskyní“, kde dům a nábytek splývají v jednu hmotu. Černý kov krbových kamen, schodiště a dalších částí interiéru přirozeně navazuje na opálenou fasádu, a to jak barevností, tak „blízkostí“ tématu ohně. Odolná podlaha z přírodního kaučuku s kamenným vsypem umožňuje svobodný pohyb mezi chatou a jejím okolím. Stavba je s výjimkou elektřiny samostatnou jednotkou. Vodou je zásobována ze studny na pozemku, odpadní vody jsou zachycovány v nádrži v podezdívce. Vytápění zajišťují krbová kamna a přímotopy.
Velkorysosti hlavní pobytové části docílili architekti minimalizací pokojů v patře na malé místnosti pro přespání v duchu filozofie, že smyslem každého výletu za město je přece být spolu… Společný prostor v celé výšce chaty propojuje prostranství před i za ní, řeku i skály. Směrem k řece je v celé své délce prosklený a navazující terasa vyzdvižená nad terén nabízí nerušený výhled. Terasu je možné uzavřít harmonikovou okenicí – když příliš pálí letní slunce nebo už je víkend u konce…
Mezi skálou a řekou
Místo: Prosečnice, Středočeský kraj, ČR
Ateliér: Mimosa architekti
Autor: Petr Moráček, Jana Zoubková, Pavel Matyska, Dalibor Pospíšil
Projekt: 2020
Realizace: 2025
Zastavěná plocha: 69 m²
Užitná plocha: 78 m²
Foto: Petr Polák