
Za obcí, u cesty vedoucí hlouběji mezi šumavské lesy a pláně, stojí chalupa z konce 19. století. Její rekonstrukcí pověřil investor architekty ze Studia Plyš, kteří ke stavbě a ke všem jejím vrstvám přistoupili s pokorou, přestože bylo nutné očistit ji od řady nevhodných zásahů a úprav, které způsobily následné stavební poruchy.
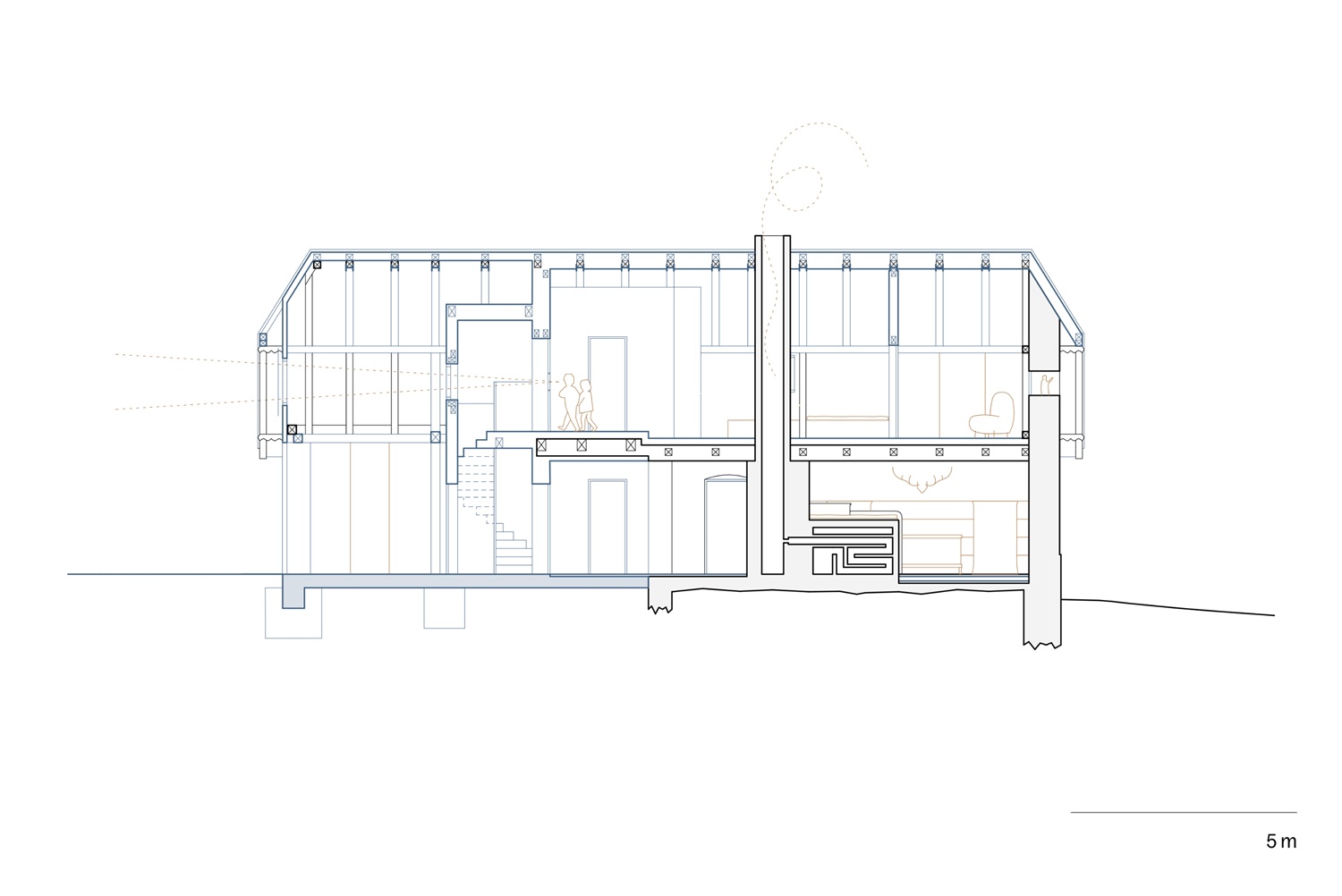
Právě tyto poruchy pojali autoři návrhu jako příležitost ke změně – z bortící se hospodářské části se stalo nové srdce domu: obývací pokoj otevírající se do zahrady, který je zároveň portálem propojen s kuchyní v zachované části domu. Stodola, převýšená do krovu, dnes slouží jako utilitární prostor, ale i jako místo pro podzimní posezení – napůl cesty mezi vnitřkem a vnějškem, teplem a zimou. Dispozičně dům dovoluje být používán jako dvougenerační, s propojením obou jednotek a společných částí centrálním schodištěm.
Silueta domu zůstala nezměněna. Nová plošná prosklení otevírají interiér dennímu světlu a krajině, velké okenice ho naopak chrání před rozmary šumavského počasí i pohledy kolemjdoucích. Kolejnice okenic zůstávají přiznané, stejně jako pohledový beton s texturou odkazující na prkna fasády. Nekřičet neznamená nepřiznat sebevědomě novou vrstvu, kterou stavení rekonstrukcí získalo.
Tři mohutné železobetonové sloupy nově nesou krov chalupy. Realizovány byly společně se základy stodoly, jež musely být kvůli nevhodným opravám z osmdesátých a devadesátých let provedeny nanovo. Původní krov chalupy se tak podařilo zachránit – těžkou betonovou krytinu nahradily falcované šablony a některé prvky krovu byly zesíleny přiznanými ocelovými příložkami. V rámci toho byl vytvořen prostor jak pro nové obytné místnosti, tak pro zateplení střešního pláště.
Vestavba, doslova přišroubovaná k objektu, vložená do podkroví a původně hospodářské části, je řešena jako moderní dřevostavba obložená vláknocementovými deskami z přírodních a recyklovaných materiálů a překližkou s přiznaným montážním materiálem. Obsahuje mimo jiné veškeré hygienické zázemí a je od původních konstrukcí oddilatována a odizolována tak, aby nedocházelo k průniku vlhkosti, ale zároveň nedošlo k narušení difuzně otevřeného charakteru historických konstrukcí.
Zachránit se podařilo i část dřevěných podlah v přízemí či kachlová kamna s labyrintem, která dělají radost. Běžné vytápění chalupy je řešeno tepelným čerpadlem vzduch–voda, řízeným v rámci chytré domácnosti. Ta ovládá i zbytek elektroinstalace domu, včetně elektricky posuvných vnějších okenic kryjících nová okna.
Balanc mezi novou vrstvou a charakterem původního domu drží také autorská sada nábytku Bedřich (nazvaná dle truhlářova jezevčíka). Rozkládací jídelní stůl, postel a lavice z dubového masivu, navržené pro místnosti v zachované části objektu, se doplňují s repasovaným nábytkem, přičemž nesou detaily téměř strojírensky vycizelovaných spojů.
Rekonstrukcí vzdali architekti hold fenoménu chalupaření, neboť bez něj by se chalupa dneška bezesporu nedožila: střecha je zateplena se stejným detailem lemu jako zmijovka, klasická čepice českých chalupářů.
Rekonstrukce chalupy Borová Lada
Místo: Borová Lada, Jihočeský kraj, ČR
Ateliér: Studio Plyš
Autor: Lenka Vávra, Petr Vávra
Spoluautor: Kateřina Vávrová
Spolupráce: Rynostav (stavba); Němec (epoxidová stěrka); Princ Parket (dubová podlaha); Truhlářství Kadlec (autorský nábytek)
Projekt: 2019
Realizace: 2024
Plocha pozemku: 1 750 m²
Hrubá podlahová plocha: 333 m²
Zastavěná plocha: 190 m²
Užitná plocha: 246 m²
Foto: Tomáš Slavík