
Rodinný dům ve Vraném nad Vltavou, jejž charakterizuje minimalistická kubická forma, byl dokončen v roce 2022 podle návrhu architekta Luky Križka z IO Studia. Ten stavbu koncipoval jako příklad nízkonákladového modulárního bydlení pro ekonomicky středně situovanou rodinu. Účelně definovaný vnitřní prostor, zredukovaný na aktuální potřeby uživatelů, lze v případě měnících se požadavků snadno rozšířit o další funkce.
Dvoupodlažní rodinný dům v ulici Na Kodlíči ve Vraném nad Vltavou, přezdívaný místními obyvateli Bílá kostka na Kodlíči, vznikl na částečně podsklepené podezdívce rekreační chaty, kterou bylo vzhledem k nevyhovujícímu stavebně-technickému stavu nutné odstranit. Cílem návrhu bylo vytvořit komfortní, avšak úsporné bydlení oproštěné od všeho „nadbytečného“, což se promítlo i do vizuálního řešení. Hmota domu ve tvaru krychle hovoří minimalistickým architektonickým jazykem, který vychází z principů modernistické architektury a je v konfrontaci s aktuálními trendy. „Redukcí výrazových prostředků se mi podařilo dosáhnout maximálního výtvarného efektu – dům nemá nic navíc, dotýká se samotné podstaty. Je stvořen pro život, nikoli na efekt,“ říká architekt Luka Križek a dodává, že díky zmíněné výtvarné čistotě je uživatelům umožněno dotvořit si interiér podle vlastních představ, aniž by byli vedeni jednostranným pohledem architekta. Pro udržení nízkého rozpočtu byly použity převážně běžné stavební prostředky a technologie, ekonomicky dostupné materiály a standardní systémová řešení.
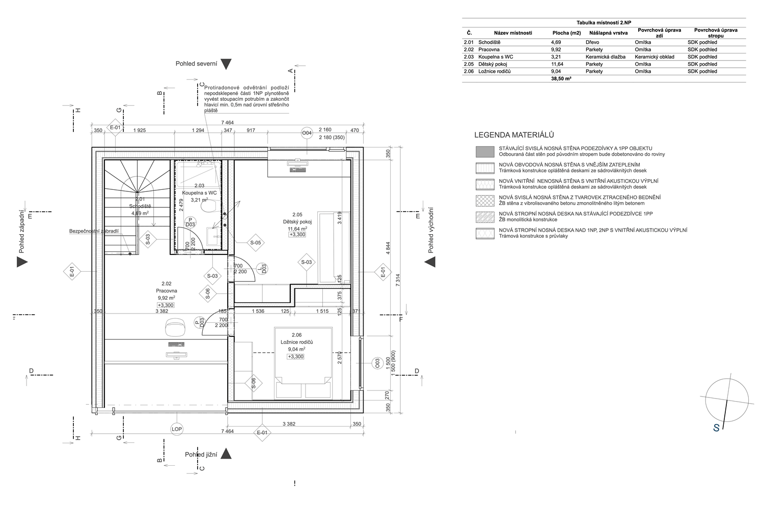
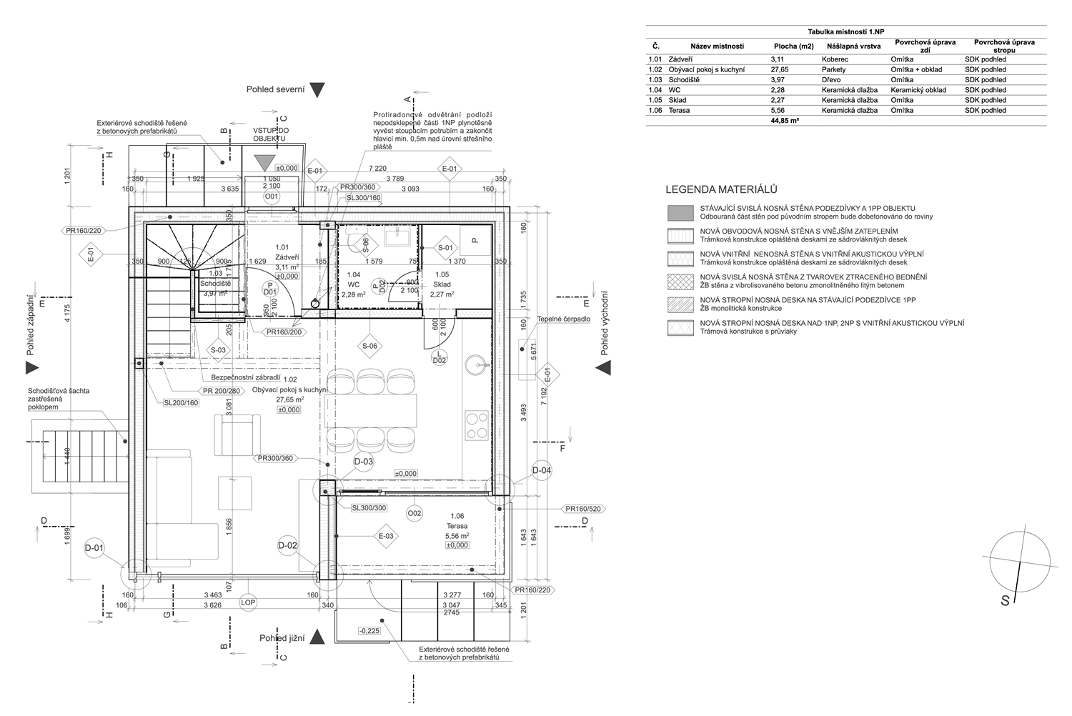
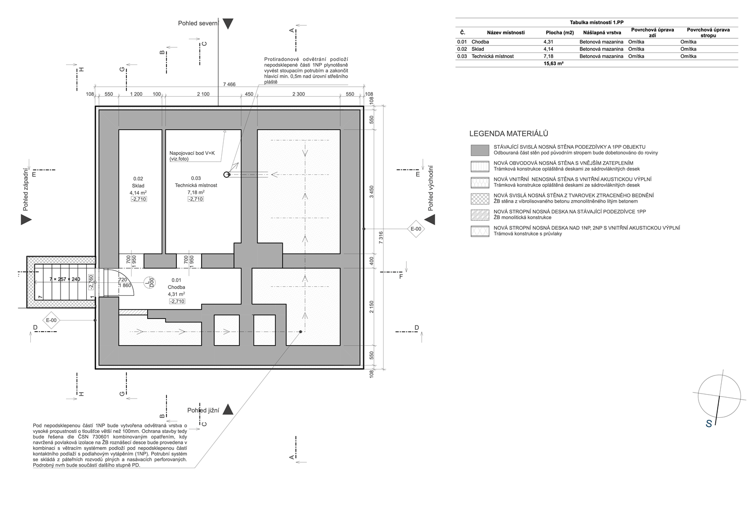
Dispozičně je dům řešen jako 4 + kk. Na jižní straně v přízemí je umístěn vstup, na nějž navazuje zádveří. Odtud se vchází do obývací části propojené s kuchyní, ke které náleží menší sklad a WC. Velkorysé prosklení orientované na sever vnáší do celého prostoru rozptýlené měkké světlo a uživatelům nabízí výhled do sadu a na televizní vysílač Cukrák. Stejným směrem je orientována také krytá terasa, jež je prodloužením kuchyně do exteriéru. S obývacím pokojem je opticky propojena pracovna v prvním patře, a to pomocí ustupující stropní desky, která v místě pracovny konstrukčně vytváří ochoz. Dále je zde umístěna ložnice, dětský pokoj a koupelna se sprchovým koutem a toaletou. V suterénu je situováno technické zázemí a skladovací prostor.
Jedinečnost projektu spočívá v tom, že dům může růst společně s jeho uživateli, kteří si tak mohou rozložit investici do více fází. Jinými slovy: nemusejí financovat velký dům pro rodinu, kterou v dané chvíli ještě nemají. Naopak v případě potřeby lze k domu velmi snadno připojit modulární jednotku, jež dům rozšíří o potřebnou funkci. Technologie suché modulární výstavby je navíc rychlá a minimalizuje negativní dopad stavebního procesu na život v domě.
Rodinný dům Vrané nad Vltavou
Autor: Luka Križek
Ateliér: IO Studio
Dodavatel stavby: Dřevostavby Kučera
Projekt: 2010–2020
Realizace: 2022
Plocha pozemku: 1 260 m2
Půdorysné rozměry objektu: 7,464 × 7,314 m
Zastavěná plocha: 54,6 m2
Užitná plocha: 84,82 m2
Náklady: 3,7 mil. Kč / asi 150 600 eur (bez DPH)
Foto: Petr Toman